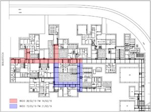
Teve início ontem (28) uma nova fase de revitalização do Corredor Central na Cidade Universitária. Os pisos localizados na área do Instituto de Biociências (Inbio) próxima à Biblioteca estão sendo removidos para a concretagem e instalação das devidas sinalizações para acessibilidade.
A previsão é de que a reforma nesta área siga até 14 de março e que a partir do dia 15 os próximos corredores do Inbio sejam também revitalizados.
As interdições para a passagem de pedestres serão realizadas conforme os trabalhos forem avançando.
Texto: Ariane Comineti – arte disponibilizada pela Pró-reitoria de Administração e Infraestrutura
